Design / Project Architect with Hamilton Young Lawlor Ellison Architects ( now HYA.ie)





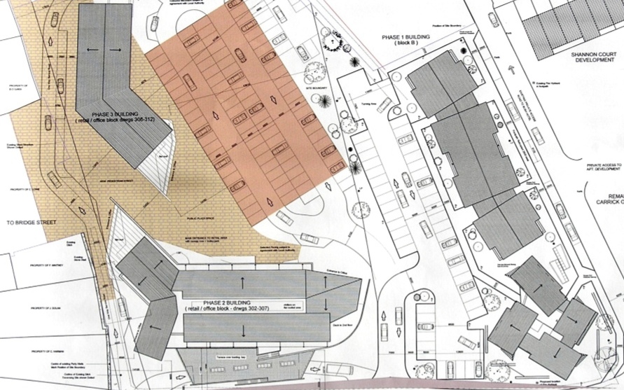
Phases 2+3 Retail / Office + Phases 4+5 Unrealised in their originally envisaged Form











Design Proposals | Intellectual Property
Design / Project Architect with Hamilton Young Lawlor Ellison Architects ( now HYA.ie)





Phases 2+3 Retail / Office + Phases 4+5 Unrealised in their originally envisaged Form











© ARCHIASSETS.COM 2026 All Rights Reserved : Design Proposals | Creative IP | Concepts | Drawings | Images. Privacy Policy. Terms & Conditions
Any unauthorised use, reproduction, or distribution of the contents of this website, whether in whole or in part, is prohibited without prior written consent