Office Block Proposal ( As Employee )








Structural Concept for Diagrid to span over 50m





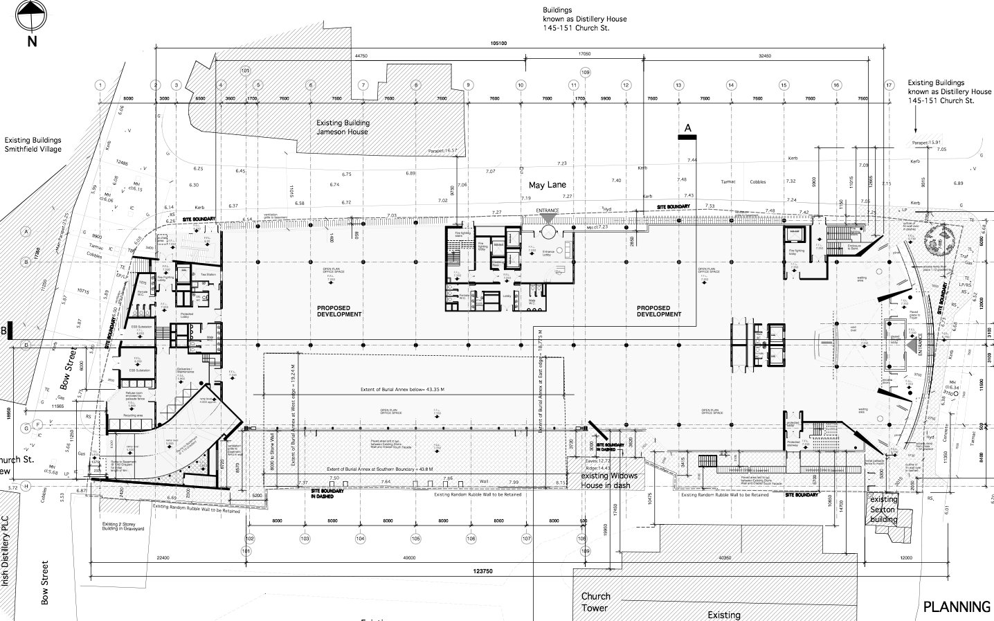
Round Tower Building Proposal (2018)
Design Proposals | Intellectual Property
Office Block Proposal ( As Employee )













Round Tower Building Proposal (2018)
© ARCHIASSETS.COM 2026 All Rights Reserved : Design Proposals | Creative IP | Concepts | Drawings | Images. Privacy Policy. Terms & Conditions
Any unauthorised use, reproduction, or distribution of the contents of this website, whether in whole or in part, is prohibited without prior written consent